Очистное сооружение ливневых стоков Alta Rain Pro 75 в Белгороде
Документы на оборудование
Описание
Очистное сооружение ливневых стоков Alta Rain Pro 75
Очистное сооружение очищает ливневые, талые, производственные и поливомоечнычные сточные воды, загрязненные нефтепродуктами и взвешенными веществами, отводимые с территорий промышленных предприятий и населенных пунктов. Блочно-модульный комплекс Alta Rain Pro предназначен для подземного монтажа.
Выполнен из коррозионно-стойкого полипропилена. Комплекс поставляется в полной заводской готовности. Габариты блоков не превышают стандартные размеры, что позволяет транспортировать его типовым транспортом. Очистное сооружение ливневых стоков Alta Rain Pro 75 сертифицировано и снабжено всей необходимой документацией для монтажа, обслуживания и эксплуатации.
Модули очистного сооружения Alta Rain Pro 75
- Приёмный модуль
- Сорбционный фильтр Alta Rain – Sorbent module
Для коалесцентного фильтра и тонкослойного модуля установок Alta Rain Pro не имеет значения концентрация взвешенных веществ и нефтепродуктов на входе в очистное сооружение.
Принцип работы Alta Rain Pro 75
В зависимости от производительности комплекс Alta Rain Pro состоит из нескольких блоков-модулей способствующих последовательному удалению загрязнений из стока. Подобранные в зависимости от качественного и количественного состава стока, система Alta Rain Pro 75 позволяют добиться максимального эффекта очистки.
- Приёмный модуль Alta Rain Pro 75 включает в себя приёмную камеру, зону накопления осадка, тонкослойный отстойник и коалесцентный фильтр
- Сорбционный фильтр Alta Rain Pro 75 очищает ливневые сточные воды до требований ПДК регламентируемых для сброса в водные объекты хозяйственно-питьевого и культурно-бытового водопользования
-
Преимущества коалесцентного фильтра Alta Rain Pro
- неограниченная фильтрационная емкость
- любая входная концентрация нефтепродуктов в стоке
- эффективность более 99%
Обслуживание станции
В базовом исполнении Alta Rain Pro предусмотрена система выгрузки осадков из камер накопления осадка ассенизационной техникой. Периодичность выгрузки: 1 раз в 6-12 месяцев (или по мере накопления осадка). Во время обслуживания производится откачка нефтепродуктов, а при необходимости замена фильтрующего материала сорбционного фильтра.
В базовом исполнении Alta Rain Pro энергонезависимое оборудование.

Опросный лист для подбора и проектирования очистных сооружений для ливневых и нефтесодержащих стоков
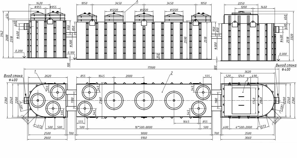
Габаритные размеры
Характеристики
|
Производительность, л/сек
|
75 |
|
Транспортировочный вес, кг
|
360, 2316, 1263 |
|
Габариты (Длина х Ширина х Высота), мм
|
16880х2360х3320 |
|
Количество х длина блоков, мм
|
2 (M1, M3a) |
|
Максимальный рабочий вес, тонн
|
18,253, 36,066, 16,520 |





>